Побързайте! Недвижими имоти в новия микрорайон на Бургас ID: 5775
Характеристики
Жилищен комплекс: Имот в Бургас за инвестиция!
Вид
Препродажба
Град
Cтаи
1
Бани
1
Тераси
1
Етаж
5 от 9
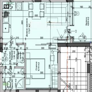
Площ
51 м²
Година
2026
До море
4.0 км
Данък за услуги
0 €/м² в година
Характеристика
Подобни оферти
Първа линия
Най-добрата цена
-4%
HOT
Препоръчано
Видове недвижими имоти
Избор по цена
Тип на имот
Характеристика
Избор по цена
Градове/курорти
