Четиристайни апартаменти в България cтраница №6
Продава се голяма, уютна къща в престижния район на Свети Влас. Къщата е двуетажна с обща площ от 311 кв.м. Построен през 2003 г. На първия етаж: голяма тераса, кухня, спалня, складово помещение, баня с душ. На първия етаж: входно антре, три спални, баня с душ, покри...
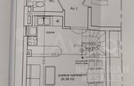
311 кв.м 4+ стаи до 300 м ПродаденПрекрасен апартамент за продажба в Свети Влас. Просторен мезонет с три спални в комплекс с хубава територия "Камбани 3". Жилището се намира на 3-ия и 4-ия етаж и е с застроената площ от 117,21 кв.м. Апартаментът се продава напълно обзаведен и готов за нанасяне. Распр...
117 кв.м 4+ стаи до 300 м 4/4 ет. ПродаденСпециално предложение за вас! Продава се апартамент с три спални и красива гледка към морето! Апартаментът се намира на първия етаж и е с площ 112 кв.м. Комплексът е разположен на първа линия до морето в Свети Влас. Това е малък уютен комплекс със затворена зона. Има...
91 кв.м 4+ стаи 2/4 ет. ПродаденВила за продажба в един от най-добрите комплекси на крайбрежието "Green Life". Вилата е с площ от 170 кв.м. Той се състои от: На първия етаж: просторна дневна с кухненски бокс, спалня, баня, тераса със собствен вътрешен двор. На втория етаж: 2 отделни спални с излаз ...
170 кв.м 4+ стаи до 200 м ПродаденВила за продажба в красивия комплекс Bay View Villas, заобиколен от природа. Къщата е на два етажа и е с обща площ 198 m². Състои се от входно антре, дневна с кухня, 4 спални, 4 бани и 3 тераси. Разпределение: Етаж 1: дневна с кухня, спалня, тераса тип "вътрешен двор...
190 кв.м 4+ стаи 3.0 км ПродаденПродава се градска къща в елитен вилен комплекс на 2 км от град Поморие и на 4 км от плажа. Площта е 140 кв. м. Разпореждане: 1 етаж: входно антре, дневна с кухня, баня и тераса с вътрешен двор и спалня. 2-ри етаж: 2 спални, баня и тераса. Къщата се продава необзавед...
140 кв.м 4+ стаи 2.0 км ПродаденПросторна къща за продажба с гледка към морето и планината в курортното селище Кошарица. Къщата е на два етажа и има обща площ от 134 кв.м. Състои се от входно антре, дневна с кухня, 2 спални, 3 бани и 2 тераси. Входът е от втория етаж, тъй като се намира в района на...
117 кв.м 4+ стаи 2.0 км ПродаденПродава се самостоятелна къща със собствен плувен басейн в затворен комплекс в курортното селище Кошарица. Къщата е двуетажна с обща площ от 212 кв.м. Състои се от входно антре, дневна с кухня, 3 спални, 3 бани и 2 тераси. Разпределение: Етаж 1: дневна с кухня, спалн...
212 кв.м 4+ стаи 2.0 км ПродаденПрекрасна семейна вила за продажба в Кошарица, BAY VIEW VILLAS. Къщата е разположена на южния склон на Стара планина с прекрасна гледка към морето и планината, далеч от шума на туристическите зони за отдих, а до плажовете на Слънчев бряг или Свети Влас ще стигнете са...
120 кв.м 4+ стаи 3.0 км ПродаденАгенция за недвижими имоти Bulgarian Resales предлага да закупите мезонет на брега на морето в Несебър. Апартаментът се намира на 6-ия и 7-ия етаж в елитния комплекс на първа линия до морето "Мираж". Общата площ е 138 кв.м. Състои се от: входно антре, дневна с кухня,...
138 кв.м 4+ стаи Първа линия 6/7 ет. ПродаденПрепоръчваме ви отлична къща с градина и територия, разположена в местността Буджака, Созопол. Къщата е самостоятелна с отделен вход в комплекса "Райски Залив", който се състои от две къщи. От терасата на къщата се открива хубава гледка. Това е тихо и уютно място за ...
121.4 кв.м 4+ стаи до 300 м ПродаденНевероятно печеливша инвестиция! Предлагаме апартамент с 3 спални в луксозен затворен комплекс "Garden of Eden". Апартаментът се намира на първия етаж от общо пет, със собствена палисада. Общата площ е 100 кв. м. Апартаментът се продава обзаведен и с уреди. Състои се...
100 кв.м 4+ стаи 1/5 ет. ПродаденПродава се градска къща в затворен комплекс в курортния град Свети Влас. Състои се от 4 спални, дневна с кухня, тераса на всеки етаж и баня. Tauhnaus се състои от 3 етажа, удобни за живеене и отдаване под наем. 1 етаж: входно антре, дневна с кухня, тераса тип палисад...
194 кв.м 4+ стаи до 100 м ПродаденПредлагаме ви да закупите къща на брега на морето в България, в град Свети Влас. Къщата се намира в комплекс от затворен тип. Състои се от 3 етажа с 4 спални, дневна, комбинирана с кухня, 3 бани. Има камина и барбекю. Отлично местоположение, гледка към планината и мо...
225 кв.м 4+ стаи Първа линия ПродаденМечтаете ли да се любувате на морето от прозореца на собствения си апартамент? Тази оферта е за вас! Предлагаме да закупите четиристаен апартамент в Свети Влас с фронтална морска панорама! Комплексът е разположен на първа линия на красивия плаж в курорта Свети Влас. ...
139 кв.м 4+ стаи 2/4 ет. ПродаденНевероятно изгодна оферта! Предлагаме да закупите триспален апартамент. Прекрасен апартамент за голямо семейство в комплекс "Sun Coast Resort". Апартаментът е на три нива, разположен на три етажа в отделна 3-етажна сграда. Общата площ е 130 кв.м. На 1-ви етаж: спалня...
130 кв.м 4+ стаи ПродаденПродава се таунхаус в елитния комплекс Камбани 1, в курортен град Свети Влас. Таунхаус състои от два обединени двустайни апартамента на 1-ви и 2-ри етаж в 3-етажна сграда. И от двете страни има собствената поляна пред входа. Расположен в най-добрата зона на комплекса...
126 кв.м 4+ стаи ПродаденЛуксозна 3-етажна къща в Свети Влас, на 350 метра от плажа и Марина Диневи. Къщата се намира в тих и спокоен район, на пешеходно разстояние от цялата градска инфраструктура: ресторанти, магазини, банки, аптека, медицински център, детски площадки. Периметър от 2884 кв...
672 кв.м 4+ стаи до 600 м 2 000 000 € 2 325 600 $ 182 958 000 ₽
