Kúpa novostavby v Burgase - byty v novej štvrti "Madika" ID: 4785
Špecifikácie
Stav
Od staviteľa
Mesto
Typ
Izby
2, 3, 4+
Podlahy
6
Plocha
60 - 250 m²
Pripravené
2027
Nábrežie
4.9 km
Na letisko
12.0 km
Vlastnosti
Nehnuteľnosti a apartmány v Kúpa novostavby v Burgase - byty v novej štvrti "Madika"
Najlepšia cena
Na predaj, Byty/Apartmány
Nehnuteľnosti v Burgas
ID 4934
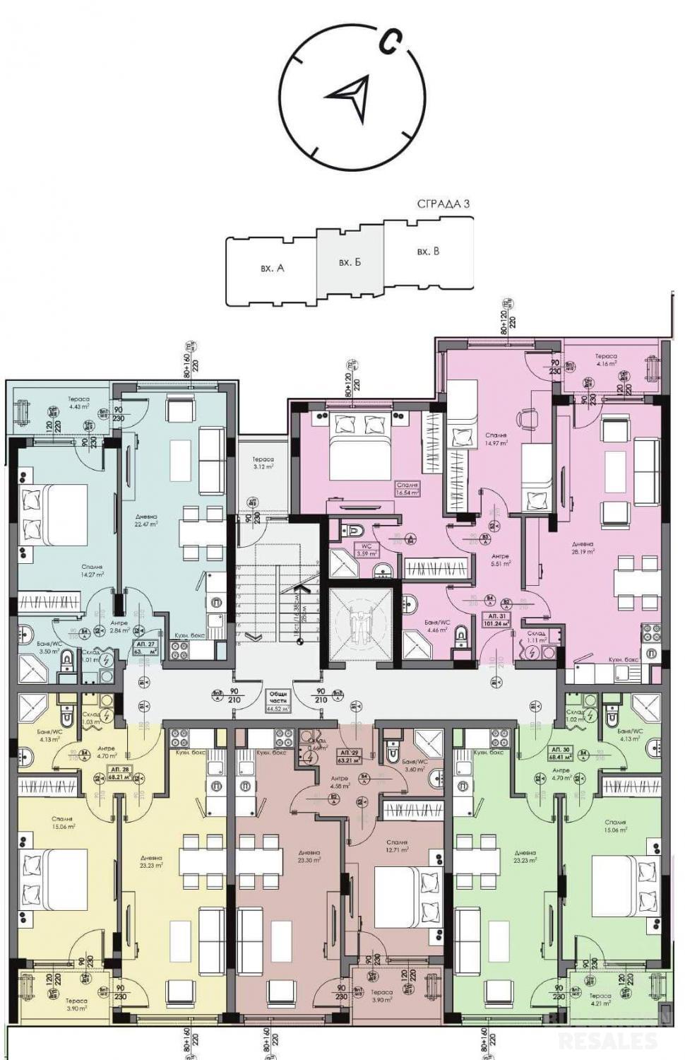
🏘️ Nepremeškajte príležitosť kúpiť byt v novostavbe v Burgase za výhodných podmienok! Našim klientom ponúkame bezúročné splátky na 3 roky! Na predaj je 1-izbový byt v rezidenčnom komplexe v modernej štvrti vo výstavbe v Burgase - „Madika“. Dokončenie komplexu je plán...
62 m2 2 izieb. 4.9 km 5/9 eta. 86 000 € 100 001 $ 7 867 194 ₽Podobné ponuky
Splátkový plán
Splátkový plán
Splátkový plán
Splátkový plán
Splátkový plán
Splátkový plán
Typ nehnuteľnosti
Nakupovať podľa ceny
Typy nehnuteľností
Vlastnosti
Nakupovať podľa ceny
Mestá / Rezorty
Užitočné informácie
