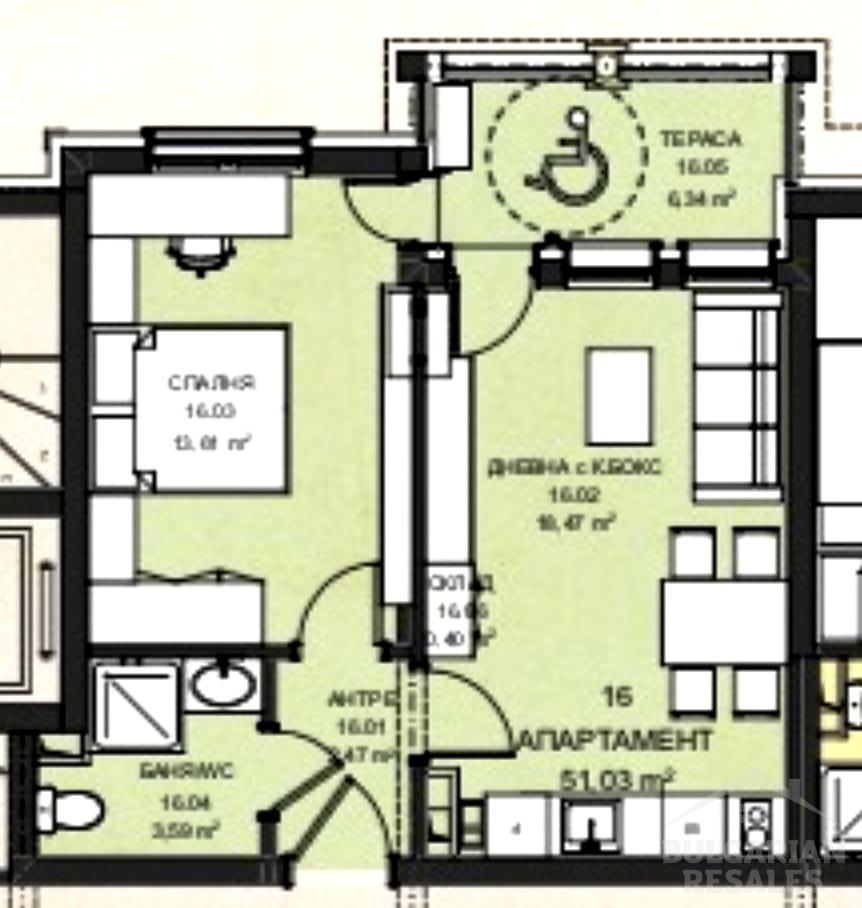
Byt s jednou spálňou v rezidenčnom komplexe „Malka Vodenitsa 2” ID: 4797
Špecifikácie
Apartmánový komplex: Nový rezidenčný komplex "Malka Vodenitza 2" v Svätom Vlase pri jachtárskom klube
Stav
Od staviteľa
Typ
Izby
2
Kúpeľňa
1
4tr_balcony
1
Podlaha
3 z 5
Plocha
62 m²
Rok
2025
Nábrežie
do 200 m
Na letisko
30.0 km
Poplatok za služby
600 €/m² za rok
Vlastnosti
Podobné ponuky
Najlepšia cena
-4%
Elite
-3%
Elite
Elite
Prvá línia
Typ nehnuteľnosti
Nakupovať podľa ceny
Typy nehnuteľností
Vlastnosti
Nakupovať podľa ceny
Mestá / Rezorty
Užitočné informácie
